マンションのリビングルームのリノベーションについて完成画像・間取り図付きで紹介します。また、マンションリビングリノベーションの費用相場やメリット、ポイントなども詳しく解説します。
【目次】
タイプ別・おしゃれなマンションリビング・居間のリノベーション事例
マンションリノベーションを実施する際に、リビングルームにフォーカスした事例をタイプ別にご紹介します。
リビングは家族が集う空間のため、デザイン・間取り・隣接する部屋の活用方法・在宅ワークなど、様々な角度からの検討が必要となります。
それぞれの事例ではリノベーションに関する画像・間取り図・広さ・築年数などの詳細情報を掲載しております。
タイプ別にご紹介する事例を参考に、理想のリビングルームを設計してください。
リビングのデザインをリノベーションした事例


リノベーションでリビングのデザインを決定するにあたり、ナチュラル、北欧、インダストリアル、モダン、ヴィンテージ、ホテルライクなど、さまざまなテイストがあります。実現したいこだわりのデザインテイストがある場合、近い事例を画像などで参考にするとよいでしょう。
こちらはこだわり家具のテイストとカラーに合わせてリビングに仕上げた事例です。壁面のテレビボードをはじめ、本棚、ベッド、クローゼットなど、モダンテイストで有名なイタリア・モルテーニ製の収納家具が入ることを想定しています。そのため、建具、扉、廊下、ソファ、飾り棚に至るまで統一感のあるデザインテイストでリノベーションしています。
【Data】
- 延床面積
- 126.91㎡
- 施工面積
- 118.25㎡
- 家族構成
- 夫婦 60代
- 築年数
- 10年
- 間取り
- 3LDK→2LDK+DEN
- 改修範囲
- 部分改装
リビングの間取りをリノベーションした事例


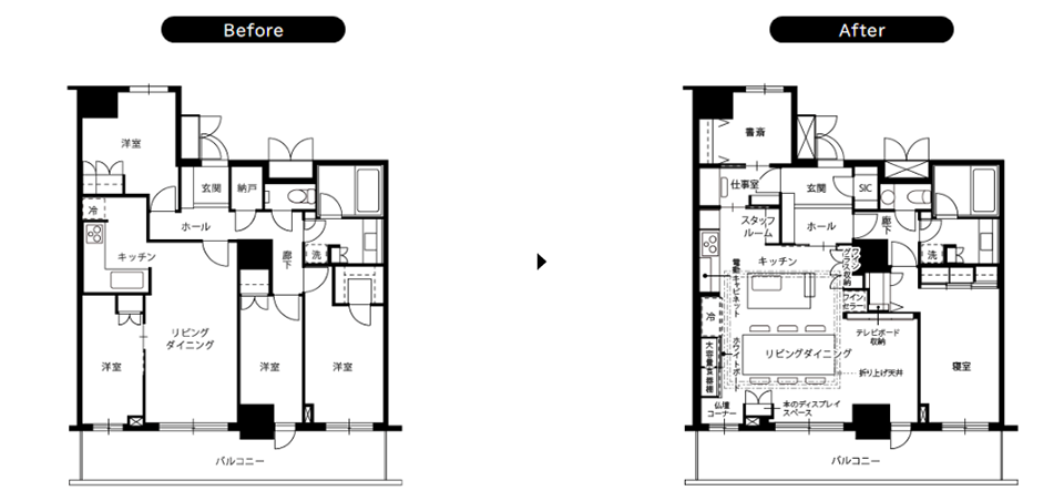
リビングの間取りを変更するリノベーションでは、リビング・ダイニング・キッチン(LDK)をひとまとまりの空間として、間取りやデザインテイストを見直した事例が多くあります。広々としたLDK空間内に対面式のアイランドキッチンを配置し、キッチンカウンター越しにリビングやダイニングを見渡して、家族とコミュニケーションがとれる間取りも人気です。
こちらの事例は、複数の部屋に分かれた間取りを、ライフスタイルに合わせて見直しました。リビングに隣接する洋室の間仕切りを撤去し、広いLDK空間を実現。使い勝手が良くおしゃれな空間になりました。
【Data】
- 延床面積
- 90㎡
- 施工面積
- 80㎡
- 家族構成
- 夫婦 40代
- 築年数
- 7年
- 間取り
- 4LDK→2LDK+仕事室
- 改修範囲
- 全面改装
リビングと隣接する和室をつなげて一体化した事例

マンションリノベーションでリビング空間を広くしたい場合、隣室の和室や洋室をつなげて一体化する方法があります。逆に、間仕切りを設置して、用途に応じてリビングから独立した空間を作り出すリノベーションも人気です。
こちらの事例では、既存の和室空間をなくして、リビングを拡張しました。さらに、壁の配置を斜めにするなど、リビングをより開放的にする工夫が施されています。全体は淡いグレーの内装を基調とし、LDKの中心には白のアイランドキッチンを配置。テレビの背面には石目柄のタイルが映える間接照明を導入して、落ち着いた雰囲気を演出しています。
【Data】
- 延床面積
- 78.13㎡
- 施工面積
- 78.13㎡
- 家族構成
- 夫婦 お子様1人
- 築年数
- 21年
- 間取り
- 4LDK→3LDK
- 改修範囲
- 全面改装
リビングの隣に和室を隣接したリノベーション事例


リビングの一角に和室を設けて、「和」を演出するマンションリノベーションも根強い人気があります。また、機能性を重視し必要に応じてリビングと間仕切りをして客間となる和室としたり、リビングの一角にくつろぎの場として畳スペースでゾーニングする例もあります。
こちらの事例は、「和モダン」リビングで落ち着きのあるデザインに仕上げました。玄関から土間・和室・LDKまでを一つながりとし、家族が回遊できるレイアウトを実現。和室へアプローチする小上がりの段差や、内障子など「和のアイデア」が盛り込まれたリノベーションです。バルコニー側サッシに組み込まれた障子越しに、やわらかな光が差し込みます。
【Data】
- 延床面積
- 76.77㎡
- 施工面積
- 76.77㎡
- 費用
- 2,000万円
- 家族構成
- 夫婦40代 ペット猫2匹
- 築年数
- 11年
- 間取り
- 4LDK→3LDK
- 改修範囲
- 全面改装
在宅ワークに対応したリビングリノベーション事例

コロナ禍の影響などにより、自宅で仕事をする人が増えています。そうした在宅ワークの生活スタイルに対応したリビングリノベーションの人気が高まっています。
こちらの事例では、リビングとつなげたオープンスペースに書斎を配置しています。リビングとの境には隙間がある仕切り壁を設け、家族の気配を感じながら暮らせるレイアウトです。
【Data】
- 延床面積
- 71㎡
- 施工面積
- 71㎡
- 家族構成
- 夫婦 50代
- 築年数
- 25年
- 間取り
- 3LDK+納戸→2LDK+書斎コーナー
- 改修範囲
- 全面改装
スケルトンリノベーション(フルリノベーション)の事例

スケルトンリノベーション(フルリノベーション)とは、マンション住戸内の床、壁、天井をすべて取り払い、躯体(くたい)のみの状態にし、間取りから一新して造り直すリフォームです。リビングの間取りや内装などを大きく変更でき、自由度の高いリノベーションが実現できます。
こちらの事例では、スケルトンリノベーションによってリビングとキッチンを一体化し、広々としたLDKに仕上げました。さらに、ご夫婦の趣味である音楽鑑賞と陶芸鑑賞を楽しめる空間を作り出しました。
※キッチンなどの水回り設備を、配置変更する場合はマンション構造によっては変更出来ない場合があります。
【Data】
- 延床面積
- 139.62㎡
- 施工面積
- 139.62㎡
- 家族構成
- 夫婦
- 築年数
- 25年
- 間取り
- 3LDK→3LDK
- 改修範囲
- 全面改装
中古マンションを購入してスケルトンリノベーション(フルリノベーション)した事例


新築マンション購入を検討していたものの、希望どおりの立地や間取り、インテリアテイストの物件が見つからないことがあります。そのようなときに、希望条件に近い中古マンションを購入してスケルトンリノベーション(フルリノベーション)する方法もあります。
こちらは、大阪北摂エリアの中古マンションをスケルトンリノベーションして、理想の住まいを実現した事例です。こだわりは自然のぬくもりを感じさせてくれる無垢の床材です。
【Data】
- 延床面積
- 70㎡
- 施工面積
- 70㎡
- 家族構成
- 4人家族
- 築年数
- 30年
- 間取り
- 3LDK→2LDK
- 改修範囲
- 全面改装
新築とマンションリノベーション、費用の違い
マンションを購入する際に、新築マンションを買うか、中古マンションを買ってマンションリノベーションするか検討する方も多いようです。
そこで、
- 新築マンション購入
- 中古マンション購入+リノベーション
以上、それぞれの費用を比較しました。
平均価格の試算では、新築マンションを購入するより、中古マンションを買ってリフォーム、またはリノベーションするほうが、およそ1,391万円安いという結果がでました。
なお、こちらの試算は2021年のマンション購入平均価格、およびリフォーム・リノベーションの平均費用をもとに算出しています。実際のマンション価格やリノベーション費用は、地域や工事内容により変動しますのでご注意ください。
首都圏の中古マンションと新築マンションの購入・リノベーション価格比較
| 中古マンション(※1) | 新築マンション(※2) | |
|---|---|---|
| 平均価格(万円) | 3,869 | 6,260 |
| 1平米単価(万円/㎡) | 59.81 | 93.6 |
| 専有面積 | 64.68 | 66.87(※3) |
| リノベーション費用(万円) | 1,000 | 0 |
| 価格合計(万円) | 4,869 | 6,260 |
| リノベ後の1平米単価(万円/㎡) | 75.28 | – |
| 総額の差額(万円) | -1,391 | – |
1:
2:
3:(専有面積は平均価格/1平米単価から算出)
マンションリビングをリノベーションするときの費用相場は?
マンションリビングのリフォーム・リノベーションの費用総額や、工事内容別の費用を詳しく紹介します。
マンションリビングのリノベーション費用相場はおよそ◯◯万円
マンションのリビング部分をフルリノベーションした場合の平米(㎡)あたりの費用相場
- 一般的なマンションならびに高級マンションの場合:15万~18万円ほど
- ハイグレードマンションの場合:25万円ほど
上記の費用は、リビングの面積や材料によって異なります。リビングとあわせてキッチンやダイニングをリノベーションすると費用がプラスされます。
リビングをフルリノベーションした場合の広さ別(畳・平米)の費用目安
| リビングの広さ(畳) | リビングの広さ面積(㎡) | 費用相場(円) |
|---|---|---|
| 6 | 9.7 | 150万〜240万 |
| 8 | 13.0 | 190万〜320万 |
| 10 | 16.2 | 240万〜410万 |
| 12 | 19.4 | 290万〜490万 |
| 14 | 22.7 | 400万〜570万 |
| 16 | 25.9 | 470万〜650万 |
| 18 | 29.2 | 530万〜730万 |
| 20 | 32.4 | 580万〜810万 |
| 22 | 35.6 | 640万〜890万 |
| 24 | 38.9 | 700万〜970万 |
| 26 | 42.1 | 760万〜1,050万 |
| 28 | 45.4 | 820万〜1,130万 |
| 30 | 48.6 | 870万〜1,220万 |
リビングのフルリノベーションの費用目安は1㎡あたり約15〜18万円を想定し、上限はグレードの高い設備などを設置する場合を想定し1㎡あたり約25万円としています。
利用する素材などにより価格は変わります。
畳1枚当たりの広さは1.62平方メートルとしています。不動産公正取引協議会連合会-不動産の公正競争規約より
工事別・マンションリビングリノベーション費用のポイント
マンションリビングをリノベーションする場合、施工箇所によって費用が変わります。各工事別の費用のポイントをご紹介します
クロス(壁紙)の張り替え費用相場の目安
クロス(壁紙)の張り替え工事は、施工の面積と素材によって費用が変わります。
クロス(壁紙)の張り替え費用目安
| リビングの広さ | クロス張り替え 面積 天井+壁(㎡) | クロス素材別の費用目安 | ||
| (畳) | 面積(㎡) | ビニールクロス | 珪藻土、漆喰、 モルタルなど ※左官作業が必要 | |
| 8 | 13.0 | 49 | 10万〜 | 35万程度 |
| 12 | 19.4 | 64 | 14万〜 | 46万程度 |
| 16 | 25.9 | 77 | 17万〜 | 55万程度 |
| 20 | 32.4 | 89 | 20万〜 | 64万程度 |
| 24 | 38.9 | 101 | 22万〜 | 73万程度 |
| 28 | 45.4 | 113 | 25万〜 | 81万程度 |
| 30 | 48.6 | 118 | 26万〜 | 85万程度 |
ビニールクロスの場合 1㎡あたり2,200円〜(既存クロス剥がし含む)を想定。
珪藻土、漆喰など左官作業による仕上げを必要とする場合 1㎡あたり7,200円程度を想定。
利用する素材(珪藻土、漆喰、レンガ、タイル等)や壁の下地の状態(塗装作業の有無)などにより価格は変わります。
畳1枚当たりの広さは1.62平方メートルとしています。不動産公正取引協議会連合会-不動産の公正競争規約より
フローリングの張り替え
フローリングの張り替え工事の費用は張り替え面積と利用する素材により変わります。木目を活かしたこだわりの無垢材やヘリンボーン床にする事例もあります。
フローリングの張り替え費用目安
| リビングの広さ | フローリング素材別の費用目安 | ||
| (畳) | 面積(㎡) | 複合フローリング | 遮音フローリング |
| 8 | 13.0 | 14万〜 | 22万〜 |
| 12 | 19.4 | 21万〜 | 32万〜 |
| 16 | 25.9 | 28万〜 | 44万〜 |
| 20 | 32.4 | 35万〜 | 55万〜 |
| 24 | 38.9 | 42万〜 | 66万〜 |
| 28 | 45.4 | 50万〜 | 77万〜 |
| 30 | 48.6 | 53万〜 | 82万〜 |
複合フローリングの場合 1㎡あたり11,000円〜(既存クローリング剥がしを含む)を想定。
遮音フローリングの場合 1㎡あたり17,000円〜(既存クローリング剥がしを含む)を想定。
利用する素材、床の下地などにより価格は変わります。
畳1枚当たりの広さは1.62平方メートルとしています。不動産公正取引協議会連合会-不動産の公正競争規約より
床暖房の設置
床暖房は、温水式と電気式での工事費用が異なります。温水式は広い範囲に向いており、長時間利用した場合、電気式よりランニングコストが低いメリットがあります。電気式は狭いスペースに適しており、設置費用は温水式より安いというメリットがあります。
| 床暖房種類 | 費用目安(12畳程度) | 設置費用 | ランニングコスト |
| 床暖房設備(熱源機交換を含む) | |||
| 温水式 | 80万円程度 | 高い | 低い |
| 電気式 | メーカーごとに異なる | 低い | 高い |
間仕切りの設置
リビングを仕切る壁を新設する工事は、造作する壁の設置面積と利用する素材により費用が変わります。
間仕切りの撤去
間仕切りを撤去する工事は、撤去する間仕切り面積などにより費用が変わります。木材や石こうボードの壁であれば撤去は可能ですが、コンクリートの構造壁である場合や、壁の中に電気配線があり撤去ができない場合があります。
各費用でできるリノベーション例
- 〜50万円 クロス(壁紙)の張り替え、フローリング張り替え、など
- 50〜100万円 間仕切りの撤去や設置
- 100〜150万円 床暖房の取り付け
- 150万円〜 クロス(壁紙)、フローリング、間仕切り撤去、壁面の造作など大幅な間取り変更 ※リビングの面積と利用する素材等、諸条件により、費用は変わります。
マンションリビングをリノベーションするメリット
家族とのコミュニケーション機会が増える

家族とのコミュニケーション機会が増えた例
- 快適性が増し、家族との団らん時間が長くなった。
- 個室よりも広く、自然に家族がリビングに集い、くつろげるようになった。
- リビング・ダイニング全体を見渡す開放的な間取りに変更し、家族の存在に気づくことが増えた。
- 広いリビングの一角に子供部屋を設けて、子供と話したり遊んだりすることが増えた。
開放感がアップ

リビングのリノベーションによって、開放感を高めた例
- リビングに隣接する部屋の間仕切りを撤去し、リビングを広い一室にする。
- 廊下をなくしてリビングスペースを確保する。
- スケルトン天井を取り入れて天井高を高くみせる。
- アイランドキッチンに変更し、リビング・ダイニングまでが見渡せるようにする。
- 窓が見える場所を増やし採光を得やすくして、明るいリビングに。
- 照明器具を天井の埋め込みダウンライトにして、空間を広く見せる。
快適性がアップ

リビングのリノベーションによって、快適性がアップした例。
- 断熱の強化と、冷暖房設備(床暖房)の設置で、居心地の良い温度を保つ。
- 風通しが良く、湿気がこもりづらい間取りにする。
- 生活動線を考えた間取りに変更して、各部屋へアプローチしやすくする。
- 壁面収納を設置して、収納力がアップ。
マンションリノベーションでリビングを検討する際の注意点
リビングのリノベーションにはさまざまな注意点があります。事前に注意すべき内容を確認しておきましょう。
希望の間取りへ変更できないことも
マンションリノベーションでは、建物の構造により、間取りを自由に変更できないこともあります。マンションの構造は主に2つのタイプがあります。
1. ラーメン構造

柱や梁(はり)が主体で建物を支える構造。間仕切り壁を取り外して、比較的自由に間取りを変更できます。構造躯体の柱や梁を壊すことはできません。
2. 壁式構造

壁で建物を支える構造。室内に撤去出来ない壁が残り、間取り変更には制約があります。
マンションの構造がわからない場合は、して現地調査を実施しましょう。
配管の場所によって、水回りの移動が制限される

キッチン、トイレ、浴室、洗面所など水回りのリノベーションは、配管の場所により移動場所が制限されることもあります。
給排水管のパイプが床スラブ(コンクリートの床)の上を通っていて、二重床の構造であれば、水回りを移動できる可能性があります。
床下の空間には排水のための勾配が必要ですが、床下の高さにゆとりがあれば水回りの移動範囲は広くなります。
直床(床スラブ貫通配管)構造では、給排水管を移動できる空間がなく、水回りの移動が制限されます。リビングと一緒にキッチンもリノベーションを計画する場合は、早めにして現地調査を実施しましょう。
マンション管理規約を事前にチェック
マンション管理組合の定める規約により、リノベーションが制約される場合もあります。事前にマンション管理規約をチェックしてみましょう。
マンション管理規約の内容に不安がある場合は、してみましょう。
売却時の資産価値が下がることも
マンションリノベーションは資産価値を高めることができますが、極端に個性的なリノベーションをすると、マンション売却時の資産価値が下がる可能性もあります。
リノベーションによりマンションの資産価値を高めたい場合は、をおすすめします。
マンションリビングリノベーションの流れ
理想のデザイン、間取りなどのイメージを決める
理想のイメージを見つける

まずは、マンション・リノベーション事例やカタログ、ショールームを見ながら、リノベーションでどんな、間取り、デザインを実現したいか、ライフスタイルや家族と暮らすイメージを固めていきましょう。
相談会やオンラインセミナーを活用して情報を集める

マンションリノベーションの完成見学会や相談会、オンラインセミナーを活用して、自分のイメージにあう実例や費用、完成イメージについての情報を集めましょう。
マンションリノベーションのデザインや費用について相談もできます。
後悔のないように早めに情報を集めましょう。
マンションノベーションの時期、工事期間を確認する

リビングの広さや工事内容によって工事期間は変化します。リビング、キッチン、ダイニングも合わせた大規模なリノベーションとなると、解体工事も必要なため工期が長くなります。また、工事期間中の仮住まいについても確認が必要です。
マンションリノベーションの相談会、オンラインセミナーを活用して、工期や、工事期間中の仮住まいなどの情報を集めましょう。
費用を調べて、資金計画を立てる
費用相場を調べる

実現したいマンションリフォーム・リノベーションの費用相場を調べてみましょう。費用相場を確認することで、希望予算でどのようなリノベアイデアを実現できるかイメージがつきやすくなります。
実現したいイメージを伝え、見積りを依頼する

マンションリフォーム・リノベーションの実際の費用は、相場と異なる場合もありますので、見積りを確認するまでわかりません。早めに見積りを依頼しましょう。
資金計画を立てる

見積りでマンションリフォーム・リノベーション費用を把握したら、資金計画を立てましょう。資金計画を立てるときに、マンションリフォーム・リノベーションで活用できる住宅ローンや補助金、税金手続きなどを担当者へ相談しましょう。
マンションノベーションのご契約へ
マンションリフォーム・リノベーションのイメージや見積りに納得されたら、いよいよご契約へ。
をご覧ください。
マンションリノベーションなら三井デザインテックへ
三井デザインテックが選ばれる理由
理想を実現する優れたデザイン力
三井デザインテックは、高級ホテルリノベーションなど様々な空間を手がけています。 デザインを生み出す設計担当リフォームプランナーが約150名在籍し、お客様の理想のリノベーションを実現いたします。
経験豊富な専門スタッフによるプロジェクトチーム制
三井デザインテックは、お客様のマンションリノベーションをプロジェクトチームでサポート。リフォームプランナー、施工・品質担当、企画・営業担当が連携して、理想のマンションリノベーションを実現します。
充実の保証・アフターサービス
三井デザインテックでは安心の保証・アフターサービスをご用意。最長2年の保証制度、定期アフターメンテナンスサービス、24時間コールセンター窓口対応など、リノベーション後も安心してお住まいいただくためのサービスも充実しています。
2023.03.01時点の情報です








