新しい住まいを購入する際、中古マンションを購入してからリノベーションをする、という選択肢があります。この記事では、中古マンションを購入してリノベーションする際の事例やメリット、注意点などをご紹介します。中古マンションのリノベーションは、ただ古い内装や設備を新しくするだけではなく、注文住宅を作り上げるような新たなライフスタイルのデザインができます。本記事を参考にしながら、新しい住まいをご検討されてみてはいかがでしょうか。
【目次】
中古マンションを購入し、リノベーションで理想の住まいを実現
マンション購入を検討する際には、予算に加えて立地と住空間の2つを気にされる方が多いでしょう。立地とは地域、エリアや駅近などの場所に関する条件、住空間とはライフスタイルに合った間取りや好みのデザインなどがあります。
予め設定した条件に基づいて住まいを探しても、住みたい物件がなかなか見つからない場合があります。そのような場合、中古マンションを購入してからリノベーションをするという選択肢があります。これにより、立地と住空間、両方の希望が満たされた生活が実現します。
中古マンションをリノベーションした事例
ここからは、中古マンションを購入されてリノベーションした事例をビフォー・アフターの図面を交えてご紹介していきます。
築9年のタワーマンションを購入して自分好みの空間に

Before

After

- ● リフォーム面積
- 124m²
- ● 延床面積
- 130m²
- ● 築年数
- 築9年
- ● 改装範囲
- 全面改装
- ● 家族構成
- 夫妻+子供1人
中古タワーマンションをフルスケルトンリノベーションした事例です。
お施主様は以前から、眺望が素晴らしいこのタワーマンションの購入を望まれていたのですが、ご縁があって物件を手に入れることができました。その後、フルリノベーションを行うことで、希望どおりの立地、眺望、空間が揃った住まいとなっています。
もともとの間取りでは、最も眺望が良い場所に主寝室がありましたが、その素晴らしい眺望をいつも楽しめるようにとレイアウトを変更し、家族が長時間過ごすリビングへと改修しました。

眺望の良いリビングの壁面には突板を貼り、自然の風合いを感じさせるデザインにしました。

壁の突板は、写真の洗面室を始めとして玄関や主寝室にも使用しており、空間全体に統一感をもたらしています。
立地の良いタワーマンション内での住替え

Before

After

- ● 構造
- SRC造
- ● リフォーム面積
- 78.7m²
- ● 延床面積
- 82.68m²
- ● 築年数
- 築10年
- ● 改装範囲
- 部分改装
- ● 家族構成
- 一人暮らし
築10年目のタワーマンションを部分的にリノベーションした事例です。
元々お住まいだった利便性の高いマンション棟内に、新たに別の住戸をご購入されてリノベーションを実施しました。すでに住環境には馴染んでいたので、自分好みの空間づくりに集中できました。
LDK、洗面、廊下を回遊できる元々の動線を維持した上で、快適な一人暮らしを実現するための住まいづくりを目指し、趣味の家具に囲まれた上質でこだわりのある空間を実現しました。

壁面に設置した棚は、オリジナルで造作をしました。棚の内部につけた間接照明の光がリビング全体を包み込むように工夫されています。

ベッドルームは明るいリビングとは対象的な壁紙を選び、落ち着いた空間にしました。
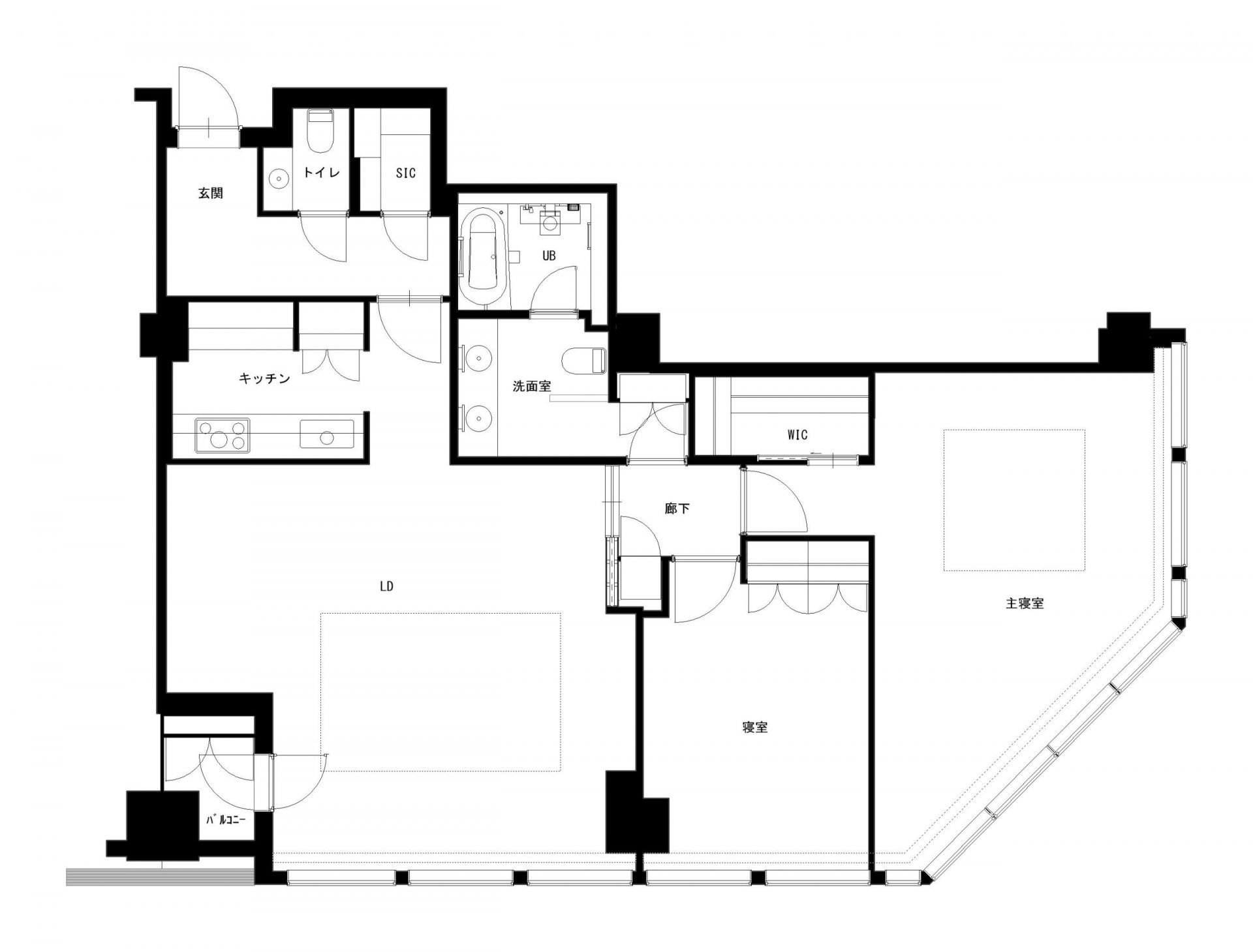
新築も検討し、こだわりを実現するため中古マンションのリノベーションを選択

Before

After

- ● 構造
- RC造
- ● リフォーム面積
- 83m²
- ● 延床面積
- 87m²
- ● 築年数
- 築10年
- ● 改装範囲
- 全面改装
- ● 家族構成
- ご夫婦
マイホームとして新築マンションの購入を考えていたご夫婦ですが、自分たちの好みを反映できる中古タワーマンションのリノベーションを選択することに。新築だと内装や間取りが固定されていますが、中古であればリノベーションを行うことで、間取りや内装を自由にカスタマイズできる点が魅力でした。
柔軟性とコストパフォーマンスを兼ね備えた中古タワーマンションのリノベーションによって、ご夫婦は理想の住空間を手に入れました。いちばんのお気に入りは、広い窓からの光が溢れ、選び抜いたアイテムを飾った快適なLDKです。

リビング裏をリモートワークにも対応できるワークスペースにしました。カウンター式の本棚とテーブル、フックを造作することで、散らかりにくい空間にしました。

大容量の玄関収納は中段に棚を設置し、空間を広く見せるようにしました。正面の壁には高級感のあるタイルを貼り落ち着きのある空間にしました。
築14年のマンションを購入後「自分流」にリノベして住まう

Before

After

- ● 構造
- RC造
- ● リフォーム面積
- 98m²
- ● 延床面積
- 98m²
- ● 築年数
- 築14年
- ● 改装範囲
- 全面改装
- ● 家族構成
- 一人暮らし
新築マンションを購入するより、希望に合う立地の中古マンションをリノベーションして、大好きな家具やインテリアに囲まれて楽しく過ごしたい。そう考えて見つけた物件が、築14年のメゾネットマンションでした。それを自分好みのシンプルな間取りにリノベーションして暮らしている事例です。

床のタイルや梁がこだわりポイントのダイニングスペースです。この写真だけを見るとまるで一戸建ての住宅のようです。

洗面室は赤いタイルをアクセントにデザインしました。
中古マンションのリノベーション費用
中古マンションをリノベーションする際の費用相場
マンションをスケルトンリノベーションした場合の平米(㎡)あたりの想定予算は、以下になります。
- 一般的なマンションの場合:25万円~
- ハイグレードマンションの場合:30万円~
| 専有面積(㎡) | リノベーション後の想定間取り | 費用相場 |
|---|---|---|
| 50 | 1LDK〜2LDK | 1,250万~1,500万 |
| 60 | 1LDK〜2LDK | 1,500万~1,800万 |
| 70 | 1LDK〜3LDK | 1,750万~2,100万 |
| 80 | 1LDK~3LDK | 2,000万~2,400万 |
| 90 | 1LDK〜3LDK | 2,250万~2,700万 |
| 100 | 1LDK〜4LDK | 2,500万~3,000万 |
| 110 | 2LDK〜4LDK | 2,750万~3,300万 |
| 120以上 | 2LDK~4LDK | 3,000万~ |
スケルトンリノベーションの下限費用目安は1㎡あたり約25万円〜を想定し、上限はグレードの高い設備などを設置する場合を想定し1㎡あたり約30万円としています。
利用する素材などにより価格は変わります。
中古マンションのリノベーションで費用が変わるポイント
マンションリノベーションの費用は、以下のような工事やリノベーション内容により費用が変動します。
- 水回りの移動により、配管工事が必要な場合
- 高級な内装材(床材、壁材、クロス素材など)を利用する場合
- 大幅な間取り変更にともない、工事期間が長くなる場合 …など
上記の例をともなうリノベーションは費用が大きく変動することがあるため、検討の段階で早めに見積りを取ることをおすすめします。
中古マンションを購入してリノベーションをするメリット
中古マンションをリノベーションするメリットは下記の3つが挙げられます。
1.新築マンションを購入するより安い
通常、新築マンションの価格は、中古マンションより高く設定されています。新築という付加価値や、最新の建築基準に準拠している点、新しい設備や仕様が採用されており、それらが費用に反映されているためです。また近年は首都圏の新築マンションの価格は高騰しており、手が届きにくくなっています。
一方、中古マンションは一般には築年数により価値が減少するため、購入価格が新築に比べて安価になる傾向があります。中古マンションをリノベーションした場合、新築マンションを購入するより、およそ1.391万円安くなるという試算もあります。試算内容についてはこちらのページで詳しく解説をしています。
さらに 中古マンションのリノベーションでは、必要な範囲や好みに応じての改修ができます。全面改装する必要はなく、部分的な改修で済ませることもできます。
こういった理由により新築マンションを購入するより、中古マンションをリノベーションした方が、コストを抑えることが可能になるのです。
詳しくは、下記リンクをご覧ください。
2.駅徒歩10分圏内など、良好な立地を選べる
中古マンションをリノベーションする際の大きなメリットの一つは、理想の立地を選べることです。都心や交通の便が良い場所など、新築では手が届きにくいエリアの物件も中古なら手頃な価格で見つかる場合もあります。日々の生活の利便性を高め、通勤やお出かけがより快適になります。
3.間取りや内装を自分好みに設計でき、注文住宅のような住空間を実現できる
同じ広さであっても、間取りを変更することによって空間の広さは不思議と違うように感じられるもの。例えば、間仕切り壁を少し取り除くことでも、空間が広がったように感じられ、開放感が得られることもあります。
中古マンションリノベーションを検討する際の注意点
中古マンションを購入してリノベーションをする場合、物件購入時の注意点と、工事をする際の注意点があります。
物件購入時の注意点
こちらは一般的な中古マンションの購入時の注意点とも重なる部分があります。
マンション管理状況と共有設備の確認
リノベ向きの中古住宅を検討する場合は、住宅の管理が行き届いているか、共有設備はどのような状態かをしっかりと確認しておきましょう。
特に管理組合の状況把握は重要なポイントです。修繕積立金はどうなっているか、大規模修繕が適切に済んでいるか、定期的なメンテナンススケジュールが守られているかをチェックしましょう。それにより築年数が古くても老朽化がそれほど進んでいないケースもあります。
また購入前にお部屋を内覧する時は専有部分だけでなく、オートロックなどのセキュリティや、住民が利用している宅配ボックス・自転車置き場・ゴミ捨て場など、生活に必要な施設も確認しておくと良いでしょう。
災害に備えてハザードマップや新耐震基準への適合を確認
中古マンションの購入に限った話ではありませんが、立地の良さだけでなく、地域のハザードマップの確認もしておきましょう。その上で検討対象の中古住宅が1981年6月の建築基準法改正での新耐震基準へ適合しているか確認をしておきましょう。また古い物件でも耐震診断を受けて新耐震基準をクリアしている可能性もあります。これは大地震(震度6〜7程度の揺れ)が発生した際に建物の倒壊リスクなどを最小限にするための重要なポイントです。
不動産・リノベーション会社との連携
信頼できる不動産会社とリノベーション会社との協力は、購入からリノベーション工事までをスムーズに進めるために必要です。
購入時の不動産会社とリノベーション時の施工会社をそれぞれに選定することもできますが、ワンストップ対応ができる会社を選ぶと中古マンション購入時からリノベーションを見据えた物件選択を依頼できます。
三井不動産グループではリノベを前提とした家探しから工事まではもちろん、適切な住宅ローンの選択から、将来的に物件を売却する際のアドバイスまでをワンストップで行える豊富な知識と経験を備えており、総合的なサポートができます。
リノベーション工事をする際の注意点
リノベーションを前提として中古マンションを購入する場合には、さらに以下のポイントについて注意をしておきましょう。
マンションリノベーションでは、希望どおりの間取りに変更できないケースもあります。
リノベーションで実現できること、できないこと
マンションリノベーションでは実現できること、できないことがあり、計画を立てる前に確認しておきましょう。

△ キッチンなど水まわり設備を移動する
十分な排水勾配をとれる範囲に移動距離が限られる。配管が階下の住戸の天井にある場合はできない
◯ 内装を変更する
壁・天井の張り替えや塗装は自由に行うことができる。また、室内ドアなどの建具交換も自由
◯ 断熱性をあげる
内窓を設けて窓の断熱性を上げる、壁や天井の内側に断熱材を充填して断熱性を上げることも可能
△ 間取りを変更する
間取り変更は自由。天井板を外して高さを上げられることも。ただし壁式構造は外せない壁がある
✕ サッシを交換する
サッシは住戸に付随していても共用部分。勝手に複層ガラス用サッシなどに交換することはできない
✕ 玄関ドアを交換する
共用部分なので交換も外側の塗装もできない。室内側の塗装はできる。錠交換は管理組合に確認を
✕ パイプスペースを移動する
各住戸への給排水管、ガス配管、電気配線などは共用の配管スペースなので、移動できない
◯ コンセントの数を増やす
住戸内の電気配線をやり直せるので、数を増やしたり、位置の移動はできる。スイッチの交換も可能
△ 床材を変更する
管理規約によって遮音性に基準が設けられている場合は、床材の選択や施工方法に工夫がいる
△ 床暖房を設置する
マンション全体のガスまたは電気容量に制約されるので管理組合に確認を。床の高さが若干上がる
✕ 耐震性を上げる
耐震補強はマンション全体にかかわることなので住戸単位ではできない。棟全体で行う場合は可能
| 実現できる(自由度が高い) |
|
|---|---|
| 実現できる(制約がある) |
|
| 実現できないこと |
|
1.希望の間取りへ変更できないことも
マンションリノベーションでは、建物の構造により、間取りを自由に変更できないこともあります。
マンションの主な構造は2つのタイプがあります。
A. ラーメン構造

ラーメン構造は、柱や梁(はり)が主体で建物を支える構造です。間仕切り壁を取り外して、比較的自由に間取りを変更できます。しかし、構造躯体(柱や梁)を壊すことはできません。
- ラーメン構造では、柱や梁が重要な役割を果たしているため、これらの構造躯体を変更することはできません。
- 柱や梁の位置によって、間取り変更後の部屋の形状や配置に制約が生じることがあります。
- 間取り変更時には、柱や梁の配置に合わせた工夫や補強が必要となる場合があります。
B. 壁式構造

壁式構造は、壁で建物を支える構造です。室内に撤去できない壁が残るため、間取り変更には壁の位置変更や撤去に制約があります。
- 壁式構造では、壁が建物の耐力を担っているため、壁の位置変更や撤去には慎重さが求められます。
- 壁の配置や強度によって、間取り変更の自由度が制約されます。
- 間取り変更の際には、壁の位置変更に伴う構造上の影響や安全性の確保に配慮する必要があります。
マンションの構造がわからない場合は、担当者に相談して現地調査を実施しましょう。
2.配管の場所によって、水回りの移動が制限される

キッチンやユニットバスなど水回りのリノベーションでは、床の構造や配管の通り道によって、水回りを移動できる範囲、自由度が大きく異なります。
床の構造が二重床であり、給排水管が床スラブ(コンクリートの床)の上を通っている場合、水回りの移動は比較的自由に行えます。二重床によって配管が覆われており、床下には十分なスペースがあるため、給排水管の移動が可能です。また、床下の空間には排水のための勾配が必要ですが、床下の高さにゆとりがあるほど水回りの移動範囲も広がります。
一方、直床(床スラブ貫通配管)構造では、給排水管を移動できるスペースが存在せず、水回りの移動が大きく制限されます。直床構造では、床スラブに配管が埋め込まれており、そのために配管の移動が難しくなります。
つまり、床の構造や配管の通り道によって、水回りを移動できる範囲が大きく異なります。
配管の位置は調査が必要な場合もありますので、早めに調査を依頼しましょう。
3.マンション管理規約を事前にチェック
マンション管理組合の定める規約により、リノベーションが制約される場合もあります。そのため、マンション管理規約をあらかじめチェックしておくことをおすすめします。マンション管理規約の内容に不安がある場合は、担当者に相談してみましょう。
4.売却時の資産価値が下がることも
マンションリノベーションは資産価値を高められますが、極端に個性的なリノベーションは、マンション売却時の資産価値が下がる可能性もあります。
リノベーションによりマンションの資産価値を高めたい場合は、リノベーションの担当者と相談しながら計画することをおすすめします。マンションリノベーションでできること・できないことについて、こちらのページで詳しく解説しています。
マンションリノベーションの流れ
マンションリノベーションで理想の家づくりを実現するためのステップをご紹介します。
1.理想のデザイン、間取りのイメージを決める

以下の資料を活用しながら、実現したい生活イメージ、リノベーションの間取り、デザインを決めていきましょう。まずは資料やカタログを取り寄せてみたり、相談をされたりすることをおすすめします。ショールームを見学するのもおすすめです。
2.マンションリノベーションの時期、工事期間を確認する

リノベーションを実施する時期を想定し、実際に工事にはどのくらいの期間がかかるのかを確認しましょう。並行して、施工期間中の仮住まいをどうするのかについても調べておきましょう。三井デザインテックでは仮住まいについてもサポートさせていただきますので、お気軽にご相談ください。
3.費用を調べて予算を決める

まずはリノベーションに必要な費用を調べながら、希望予算を決めましょう。実際の事例を見るうちに「あれもいいな」「これも入れたいな」とやりたいことはどんどん増え、予算よりも膨らんでしまう傾向にあります。最初にまず大まかな予算を決めてしまいましょう。
次に、実現したいマンションリノベーションの費用相場を調べてみましょう。費用相場を確認することで、予算の範囲内でどのようなリノベーションプランを実現できるのか、イメージをつけやすくなります。
また、資金計画も重要です。資金計画を立てるときには、マンションリノベーションに利用できる補助金、必要な税金手続きやローンなども調べておきましょう。
4.実現したいイメージを伝え、見積もりを依頼する

マンションリノベーションの実際の費用は、マンションの特性によっては相場と異なる場合もあります。実際に見積りを確認するまで明確な費用は分かりませんので、早めに見積りを依頼しましょう。
担当者が決まったら、補助金やローンについても相談できますので、リノベーションを検討し始めたらまずはいちど相談してみることをおすすめします。
マンションリノベーションをトータルでサポートいたします
マンションリノベーションをご検討の方は、ぜひ三井デザインテックへご相談ください。リノベーションにかかわるデザイン・間取りタイプ、予算・費用、工事内容など、さまざまなご要望をトータルでサポートいたします。
三井デザインテックが選ばれる5つの理由
理想を実現する優れたデザイン力
三井デザインテックは、ホテルやオフィスなどの公共空間、マンションや戸建てなどの住空間など、さまざまな空間の設計デザインを手がけています。
住空間に関しては、理想のデザインを生み出す設計担当リフォームプランナーが約150名在籍し、お客様の理想のリノベーションを実現いたします。
経験豊富な専門スタッフによるプロジェクトチーム制
三井デザインテックは、お客様のマンションリノベーションをプロジェクトチームでサポートします。企画・営業担当、リフォームプランナー、施工・品質担当、その他専門スタッフが連携して、理想のマンションリノベーションを実現します。
充実の保証・アフターサービス
三井デザインテックでは安心の保証・アフターサービスをご用意しています。最長2年の保証制度、定期アフターメンテナンスサービス、24時間コールセンター窓口対応など、リノベーション後も安心してお住まいいただくためのサービスを充実させています。
三井不動産グループの連携力
三井デザインテックでは、中古物件探し、各種リフォームローンなどで三井不動産グループと連携して、お客様のリフォームのご要望にお応えいたします。
豊富な受賞実績
三井デザインテックでは、これまでにリフォームコンクールなどで数々の受賞実績がございます。
2024.02.13時点の情報です

